Layout Detail

View detailed information for a layout

← Back to Layouts
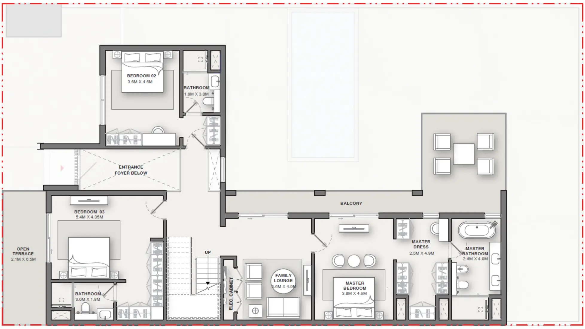
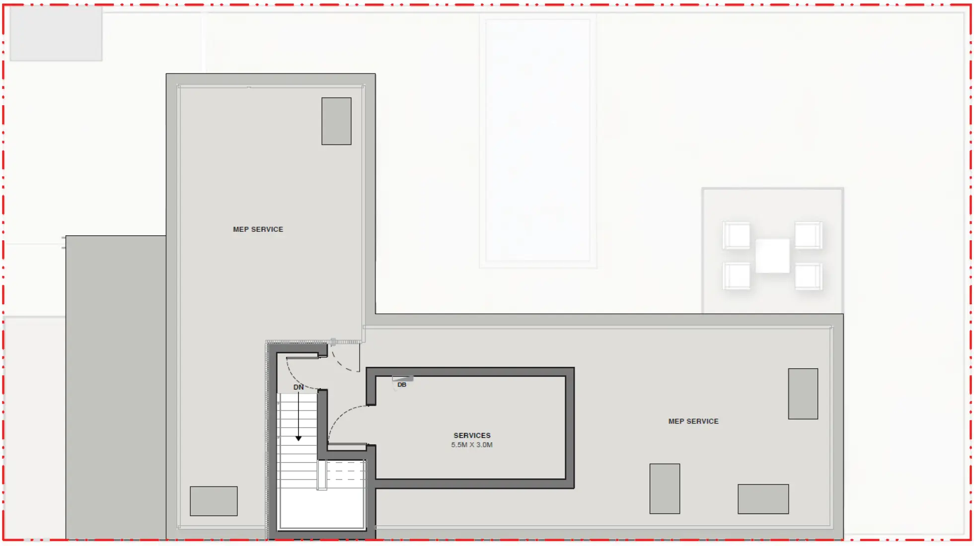
Floor Plan

4 Bedrooms

Layout ID
1680010564134x111876567183654910
Numeric ID
931
Type
Villa
Bedrooms
4
Bathrooms
6
Total Area
4997.9 sq ft
Internal Area
4671 sq ft
Price
7,711,821
Balcony
Open
View
City
Windows View
Panoramic
Finishing
Furnished
Sold Out
N/A
Unit Number
SR-V 39
Created Date
2024-11-20
Modified Date
2025-02-14
Delivery Date
2026-01-28

Floor Plans

Webflow Field Mapping

behomes-id
1680010564134x111876567183654910
numeric-id
931
offplanorsecondary
Off-plan
reviewstatus
Sold out
createddate
2024-11-20T18:23:43Z
modifieddate
2025-02-14T09:51:18Z
layoutbalcony
Open
layoutbedroomcount
4
layoutcompletiondate
2026-01-05T18:00:00Z
layoutdeliverydate
2026-01-28T18:00:00Z
layoutfinishing
Furnished
layoutname
4BR C
layoutpaymenttype
100% payment, Installment, Mortgage, 100% payment, Installment, Mortgage, 100% payment, Installment, Mortgage
layoutprice100
7711821
layoutpriceselling
7711821
layoutarea-internal
4671
layoutarea-total
4997.9
layouttype
Villa
layoutunitnumber
SR-V 39
layoutview
City
layoutwindowsview
Panoramic
layouttoilet
6
layouttoiletcount
6
layoutsoldout
(empty)
layout3dlink
(empty)
layoutfloorplan
https://app.behomes.tech/img/jpg/resize/_x1100/none/aHR0cHM6Ly9jZG4uYmVob21lcy50ZWNoL3VwbG9hZHMvcHVibGljLzY3Ni81NmQvYjkwLzY3NjU2ZGI5MDU1Mjk4MDA3ODA2MzQuanBn
name
4 Bedrooms
slug
4-bedrooms-8bde11
layoutscheme
[ { "url": "https:\/\/app.behomes.tech\/img\/jpg\/resize\/_x1100\/none\/aHR0cHM6Ly9jZG4uYmVob21lcy50ZWNoL3VwbG9hZHMvcHVibGljLzY3OS9kMGMvMmYyLzY3OWQwYzJmMjdlNDgzMzU4OTU5MTAucG5n", "alt": "Floor Plan - 4 Bedrooms - Villa" }, { "url": "https:\/\/app.behomes.tech\/img\/jpg\/resize\/_x1100\/none\/aHR0cHM6Ly9jZG4uYmVob21lcy50ZWNoL3VwbG9hZHMvcHVibGljLzY3OS9kMGMvMmY1LzY3OWQwYzJmNTUxNWQ1NTY3NjQ0NTEucG5n", "alt": "Floor Plan - 4 Bedrooms - Villa" }, { "url": "https:\/\/app.behomes.tech\/img\/jpg\/resize\/_x1100\/none\/aHR0cHM6Ly9jZG4uYmVob21lcy50ZWNoL3VwbG9hZHMvcHVibGljLzY3OS9kMGMvMmY3LzY3OWQwYzJmN2E4YjQ0MjQ4ODkyOTQucG5n", "alt": "Floor Plan - 4 Bedrooms - Villa" } ]